
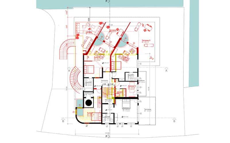
Architektur & Planung
Hotel Seerose
Die unter dem Namen Pension Windsor im Jahr 1890 erstellte Seerose wurde in mehr als sechs Etappen in unterschiedlichen Baukonstruktionen und von diversen Bauherren erweitert.
Die geologischen Baugrundverhältnisse wurden dabei ungenügend beachtet: Mit Ausnahme des seeseitigen Restaurantanbaus mit Terrasse sind die Gebäudeteile nicht mit Fundationspfählen gebaut worden.
Das seit 2013 geschlossen Hotel-Restaurant Seerose in Faulensee wurde 2018 von der Hotelierfamile Fetzer erworben.
Nun beabsichtigen sie dem alten Hotel, mit einem zeitgemässen Umbau, neues Leben einzuwecken und als ihr drittes Hotel zu betreiben.
Bauherr: Strandhotel Seeblick AG
Planung: 2018-2021
Webseite:
Auftragsbeschrieb
- Architektur & Pläne
- Visualisierungen
- Baueingabe