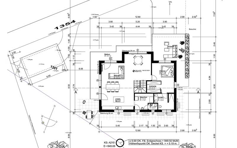
Architektur & Planung
2-FMH in Aeschiried
Im Tannenmattli in Aeschiried ist ein kleines Bijou entstanden.
An schöner Aussichtslage durften wir für eine äusserst sympathischen und junge Familie
dieses 2 Familienhaus planen.
Planung: 2018
Ausführung: 2018
Auftragsbeschrieb
- Vorprojekt
- Bauprojekt
- Baueingabe
- Submission
- Bauleitung im 2018 aus zeitlichen Gründen nicht möglich








